机械格栅作用型号表达方式

回转式格栅清污机主要特点
结构紧凑、电气控制简单,便于实现自动化;
耐蚀性优、能耗小、噪音低;
除污动作连续、排污干净、分离效率高。
回转式格栅清污机工作原理
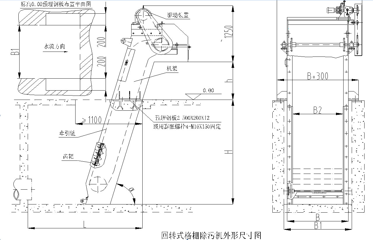
该设备是由ABS工程塑料、尼龙或不锈钢制成的特殊形耙齿,按一定的排列次序装在耙齿轴上形成封闭式耙齿链,其下部装在进水渠水中。当传动系统带动链轮作匀速定向旋转时,整个耙齿链便自上而下运动,并携带固体杂物从液体中分离出来,流体通过耙齿间隙流出去,整个工作状态连续进行。
由于耙齿的特殊结构形状,使耙齿链携带杂物到达上端反向运动时,前后耙间产生相对自清运动,促使杂物依靠重力脱落,设备后面可设置旋转的清污刷,进一步除净滞留在耙齿污物,如需要定货时需注明。
回转式格栅清污机技术参数
按设备宽B格栅机分:单联机GSHZ300-1400型、并联机GSHZ1400-3000型。选型由过水量、提升高度 而定,同时根据所分离杂物的大小选配不同格栅。

选型*参数说明
*:渠道的宽度(或者设备的宽度)B、渠道的深度H、格栅栅隙b、耙齿材质要求、机架材质要求。
无特殊说明的按常规:安装角度75°,出渣高度600MM,功率标配,板材厚度标配
结构简图

过水流量表

选型询价
GSHZ回转式格栅除污机,必须问客户渠宽,渠深,格栅间隙,材质要求、如果未提供,按照厂方标配,出渣高度,安装角度?
地址:南京市六合区雄州街道果园路1号新材料产业园办公楼302室
传真: 86-025-57650002
邮箱:2360963066@qq.com